Get the #1 Bible app for transformative study, preaching, and teaching.
Sign in or register for a free account to set your preferred Bible and rate books.
Tempel. I. Tempel Salomos. Über die allgemeinen Voraussetzungen der Kunstentwicklung in Israel s. Art. „Kunst“ 2) und 3). Ebendort siehe über das Verhältnis des Tempels Salomos zur Stiftshütte.
1) Wir geben zunächst eine Beschreibung nach den biblischen Berichten.
a. Der Bau lag auf dem Hügel Morija — Zion (siehe dort) und nahm ungefähr die Stelle der heutigen Omarmoschee (Kubbet es-Sachra, vergleiche das Titelbild) in der Mitte des Hügelplateaus ein, das oben durch Ausschüttungen noch erweitert und gegen die Schluchten hin durch mächtige Unterbauten gestützt wurde, deren Außenlinie nach oben schräg zulief. In der sogenannten Klagemauer (Abbildung 170) sind heute noch solche riesigen Substruktionen auf der Westseite des Tempelbergs zu sehen, welche in der Hauptsache von Herodes herrühren, aber auch noch Reste von salomonischer Zeit enthalten können (nach Eh. de Vogué).
Die fabelhaft scheinenden großartigen Vorbereitungen zu dem Bau (circa 960 vor Christus), wie sie 1. Könige 5, 27 folgende schildert, erhalten ihre Bestätigung durch manche Reliefplatte aus Nimrud (Ninive), welche ähnliche Unternehmungen orientalischer Herrscher im Steinbild zeigt. Ohne Zweifel führte schon damals über die Schlucht auf der Westseite eine Brücke zur Morija-Plattform, die durch Herodes wieder erneuert wurde und deren Reste noch stehen. Bekannt sind die zwei Vorhöfe (des Volkes und der Priester), welche den Tempel umschlossen. Sie hatten mehrere Tore nach außen und innen.
b. Das Tempelgebäude selbst bildete den Kern der ganzen Anlage, ein längliches Rechteck von 60 Ellen Länge, 20 Ellen Breite und 30 Ellen Höhe. Es lag auf erhöhter Terrasse, und diese Terrassenanlage ist assyrisch-babylonischen Ursprungs.
Wie stellte sich das Tempelgebäude von Außen dar? Es war auf drei Seiten von einem dreistöckigen Anbau (Abb. 344) umgeben, der Schatzkammern und Priesterräume enthielt, über dem aber der Mittelbau hoch emporragte; vorne war eine Vorhalle mit dem einzigen Tor gegen Osten vorgelegt.
Die Dächer waren flach. Wir haben also von vorne ein Gebäude mit hohem Mittelbau, den ein plattes, von einfachem Gesims getragenes Dach abschließt, und mit niedrigeren, ebenfalls flach gedeckten „Seitenschiffen“.
Ganz entgegengesetzt den Schiffen einer Kirche war der Anbau auf allen Seiten nach innen geschlossen, vom Heiligen und Allerheiligsten durch die innere Sargmauer des Kern- und Hauptgebäudes getrennt.
Aber er hatte, dreistöckig wie er war, auch drei Reihen Fenster, da er ja Kammern und Wohnstätten enthielt.
Und auch der überragende Teil des Mittelgebäudes hatte eine Reihe kleiner, vergitterter Fenster ins Heilige und Allerheiligste, welche aber wohl in ihrer Höhe wenig Licht gaben und geben sollten, mehr als Lustlöcher zur Ventilation dienten.
Die Vorhalle, wahrscheinlich niedriger, ist natürlich ebenfalls viereckig und flachgedeckt zu denken.
Der Grundriß des Ganzen war also höchst einfach und steif, die gerade Linie herrscht vor und bildet ein mässig großes Rechteck; aber charakteristisch und bedeutsam ist doch die Gliederung, welche mit Bewusstsein den Kern des Heiligen und Allerheiligsten in die Mitte, ebenfalls als (kleineres) Rechteck schön unterbringt und damit die zentrale Bedeutung dieser Kultstätte wahrt. Hierin haben wir das Durchschlagen des religiösen Gedankens, wie wir solches in den Raum an Raum hintereinander enthaltenden ägyptischen Anlagen nicht finden.
Das Haus erschien dem Beschauer als Steinbau von „großen und köstlichen“ Quadern. Die ganze schmucklose, aber solide Einfachheit des Äußeren sollte
c. aufs Innere weisen, dessen Pracht eine wahrhaft „orientalische“ war, das heißt aber auch, die Kostbarkeit und den Prunk der Stoffe höher anschlug als die Schönheit der Form.
— Ehe wir zur Vorhalle eintreten, begegnen wir rechts und links den beiden Erzsäulen Jachin und Boas („Fest“ und „Stark“?). Sie waren die einzigen Säulen am ganzen Bau (siehe den Artikel Jachin).
Treten wir durch das große, wahrscheinlich offene Portal der Vorhalle in diese und dann durch zwei weite Flügeltüren, deren Cypressenholzflügel sich in goldenen Angeln drehen und deren zweite mit einem Vorhang versehen war, ins Heilige und Allerheiligste, so finden wir oben durchhin eine flache Zedernholzdecke, die Wände und den Fußboden ebenfalls mit Zedernholz getäfelt und die ganze Holzverkleidung, alle inneren Räume oben, unten und auf den Seiten mit Goldplatten überzogen.
Die Seiten und die Decke, sowie der gewirkte Vorhang zeigten überdies noch Blumengehänge, Palmen und Cherubim als Wand- und Deckenzier.
Dieser Figuren- und Blumenschmuck ist in drei Feldern übereinander vorzustellen, sodass im Mittelfeld der jedesmaligen Wand Cherubim und Palmen (miteinander abwechselnd) zu sehen waren.
Die Fruchtschnüre und Koloquinten aber liefen oben und unten als Randverzierungen hin.
Unter den Koloquintenreihen hat man sich eierstabähnliche Langornamente zu denken, von den ovalen Früchten des Citrullus Colocynthis hergenommen.
Es fragt sich nur, ob diese Ornamente in Flachrelief (halb erhaben) gearbeitet oder eingetieft und eingegraben waren, derart, dass die Figuren sich nicht über die gearbeitete Fläche erhoben. Das biblische „ausgegraben“ (doch mehr „ausgehöhlt“) kann am Ende beides bedeuten.
Wenn aber doch wahrscheinlicher an eingetiefte Arbeiten, über die natürlich der Goldbeleg erst nach Vollendung hergezogen wurde, zu denken ist, so haben wir hier wieder speziell ägyptische Analogien.
In der Spätzeit des Neuen Reichs, am Anfang des 2. Jahrtausends vor Christus, kamen in Ägypten solche Hohlreliefs (bas-relief en creux) auf. Sie waren dort farbig ausgemalt, während hier der Überzug mit Gold dem phönikischen Geschmack näher steht.
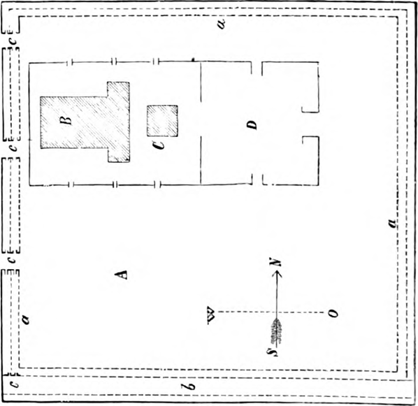
Über die einzelnen Geräte, Räucheraltar, Leuchter, Schaubrottische im Heiligen, wie die Cherubim im Allerheiligsten, siehe die einzelnen Artikel und den Grundriss Abb. 345 (im Heiligen C der Räucheraltar c, auf beiden Langseiten je 5 goldene Leuchter d und 5 Schaubrottische e; im Allerheiligsten B die Bundeslade a).
Wir tragen noch nach, dass zu den Seitenkammern besondere Wendel-Aufgänge von der äußeren Südseite führten; ferner, dass wohl das Allerheiligste durch einen oberen Zwischenboden niedriger war als das Heilige, ganz wie die Cella des ägyptischen Tempels; endlich, dass im Gegensatz zu den in Ägypten und Assyrien vorkommenden Rundbögen und Wölbungen hier alles geradlinig war, die Decke gleichwie die Fenster- und Torstürze.
D. Der Tempel war von zwei Vorhöfen umgeben. Zunächst lag um das Tempelgebäude herum der innere Vorhof (1Kön. 6, 36), später auch „Vorhof der Priester“ (2Chr. 4, 9) und „oberer Vorhof“ (Jer. 36, 10) genannt. Das heißt erhöht über dem ersten Vorhof, von dem er durch eine niedrige Mauer getrennt war.
Durch diese Mauer führten verschiedene Tore (2Kön. 11, 6; 2Kön. 23, 8; 2Chr. 23, 4. — Jer. 20, 2); ohne Zweifel waren es nach dem Tempelplan Hesekiels, Hes. 40, 23 Hes. 40, 27, auch in Wirklichkeit drei, die denen des äußeren Vorhofs gerade gegenüberlagen. Nämlich ein Nordtor (oberes Tor, von Jotham gebaut, das heißt umgebaut, 2Kön. 15, 35, Tor des Altars, Hes. 8, 5, wohl das von den Opfernden gewöhnlich zu benutzende), ein Osttor, (Tor des Königs, 1Chr. 9, 18, vergleiche Hes. 46, 1), und ein Südtor. Es wird auch ein „neues Tor“ genannt, Jer. 26, 10; Jer. 36, 10, vielleicht dasselbe wie das obere Tor.
In der Mitte des Priestervorhofs stand der Brandopferaltar mit seinen Altarstaffeln (h i), vor ihm das eherne Meer (k), zu beiden Seiten je fünf fahrbare Wasserbecken (11), siehe die betreffenden Artikel und Handfass. 2Chr. 6, 13 wird eine „Kanzel“ im Vorhof erwähnt, wie es scheint ein erhöhter reservierter Platz für den Hof.
Rätselhaft ist 2Kön. 16, 18 „die bedeckte Sabbatshalle“, vielleicht ähnlich zu erklären wie die Kanzel.
Weiter wird ein Opferkasten erwähnt (2Kön. 12, 10; 2Chr. 24, 8), ein Gefängnislokal zu Polizeizwecken (Jer. 20, 2), letzteres jedenfalls im äußeren Vorhof.
Dieser, er heißt auch der große, ist auf unserem Grundriss Abb. 345 nicht mehr angegeben. Er war von einer hohen Umfassungsmauer umgeben, durch welche erzbeschlagene Tore führten. Diese höhere Umfassungsmauer schloss also den ganzen Tempelbezirk ab.
An ihrer Innenseite scheinen Kammern, vielleicht auch mehrstöckige Bauten, ohne Zweifel zur Seite der Tore, angebracht worden zu sein, die oft besondere Namen führten, 2Kön. 23, 11; Jer. 35, 4; Jer. 36, 10. Sie dienten als Lagerräume sowie zum Aufenthalt für Priester und Leviten, 1Chr. 9, 26; 1Chr. 23, 28; 2Chr. 31, 11; Neh. 10, 38.
Auch ein Stallungsgebäude fand sich (Parbar, Parwarim [s. d.], 2Kön. 23, 11; 1Chr. 26, 18).
Mit Rücksicht auf solche weitere Vorhofsbauten, Erweiterung des ursprünglichen Umfangs des äußeren Vorhofs spricht 2Chr. 20, 5 vom „neuen Vorhof“. Über Gestalt und Größe desselben ist nichts Sicheres zu sagen: er umgab wohl im Viereck Tempel und inneren Vorhof. Nach 1Chr. 26, 14–18 hat er vier Tore gehabt, nämlich noch ein Westtor als Haupteingang von der Stadt.
In den „Vorhöfen“ nahte das Volk anbetend seinem Gott, Jes. 1, 12 (Psalmen siehe später). Der Zutritt auch in den inneren Vorhof stand ihm ursprünglich zu; erst später wurde es von demselben als dem „Priestervorhof“ ausgeschlossen; doch wird der äußere Vorhof immer der Hauptversammlungsort gewesen sein, wo zum Beispiel auch die Propheten das Volk ansprachen, besonders unter den Torgebäuden oder von jenen innerhalb der Mauer hinlaufenden Zellen aus, vergleiche Jer. 7, 2; Jer. 19, 14; Jer. 36, 10.
— 2. Was nun die künstlerische Seite der Bauten, die Stilformen betrifft, so ist alles, was hierüber geschrieben, behauptet oder im Bilde dargestellt worden ist, lediglich Vermutung. Das Urteil des besonnenen Kunstforschers muss dahin lauten, dass wir über die Beschaffenheit und den Eindruck der Bauten in genauer Hinsicht bislang — und wohl für immer — keine bestimmte Anschauung gewinnen können.
Die Hebräer waren in der Baukunst von den Phöniziern abhängig, wie ja auch die Bibel alles als phönikische Arbeit bezeichnet. Allein schon die vielräumige Anlage des Salomonischen Tempels geht weit über jene Vorbilder (ein geschlossener Hof mit einem Tabernakel darin) hinaus und von den äußeren Ansichten eines phönikischen Tempels besitzen wir selbst keine genügende Vorstellung (vergleiche die römische Münze von Byblos, Abbildung 121, S. 204).
Da aber in Phönikien selbst sich die beiden Kulturen des babylonischen Ostens und des ägyptischen Südens begegneten, und die Phöniker nicht allzu produktiv angelegt sind, so dürfen wir Anregungen und Entlehnungen von beiden Seiten annehmen. Man darf sich also wohl die Fronten in der Art der ägyptischen Pylonen, mächtiger massiger Türme denken (ähnlich auch Perrot et Chipiez, Histoire de l’art dans l’antiquité, Paris 1887, Tom. IV, Tafel zu S. 272 und bes. zu S. 296 (vergleiche Abb. 346); es handelt sich dort um den Hesekielischen Tempel, welcher aber wohl einen Rückschluss auf den Salomonischen Tempel erlaubt, den der Prophet kannte (s. Abb. 344), wogegen uns die spitzen vierseitigen Dächer in E. Schicks Rekonstruktion (C. Schick, Stiftshütte, Tempel und Tempelplatz in Jerusalem. Berlin 1896, Seite 61 und Modell verkleinert auf Abb. 347) unannehmbar erscheinen.
Auch bei den Ornamenten im Innern müssen wir uns einen Mischstil denken, aus östlichen (babylonisch-assyrischen, auch persischen) und ägyptischen Einflüssen, mit vorwiegend geometrischen Mustern, wie zum Beispiel an den Kapitälen der beiden Freisäulen Jachin und Boas, vergleiche Perrot u. Chipiez a.a.O., Tafeln bei S. 318. Ein kleines (Ton-?) Modell eines phönikischen Tempelchens, Abb. 348, zeigt zwei Freisäulen rechts und links des Eingangs; die Herkunft ist aber nicht angegeben. — Zu der Literatur führen wir noch an das große Spezialwerk in Folio Le temple de Jérusalem par M. de Vogué. Paris 1864.
— 3) Die Bedeutung a. des salomon. Tempels als der einzig rechtmässigen Gottesdienststätte und als des Nationalheiligtums in Israel hat sich erst allmählich entwickelt. Nicht sofort wurde er als dies anerkannt; lange noch spielten die Heiligtümer von Bethel usw. eine große Rolle neben ihm (s. Art. Höhen).
Allein mehr und mehr, besonders seit Hiskia und Josia, kam er zur Geltung als der Ort, wo Jahwe wohnen will unter seinem Volk. vergleiche Joe. 2, 1; Joe. 3, 5; 4, 16 f.; Amos 1, 2; Jes. 10, 32; Jes. 28, 16; Jes. 33, 20 und öfter, vergleiche mit Jes. 30, 29; Jes. 31, 9; Jes. 1, 10ff.
Im Tempel hatte nun der Glaube des Volkes an Gottes Gegenwart und an seine Hilfe und Rettung usw. seinen greifbaren Anhaltspunkt, und das ging auch auf den nach der Rückkehr aus der Verbannung (Exil) bescheidener wiederhergestellten Tempel Serubabels über. So armselig er war, so knüpften die Propheten jener Zeit die höchsten Hoffnungen daran; ohne ihn ist einmal das Wohnen Jahwes unter seinem Volke nicht denkbar, Sach. 1, 16; Sach. 8, 3; ja er rückt in den Vordergrund der Weissagungen auf die Messiazeit, wo dies Haus von aller Welt aufgesucht und geschmückt werden soll, Sach. 6, 12f.; Hag. 2, 6ff.
Insbesondere in den Psalmen sehen wir, welche Stellung der Tempel im innersten Glaubensleben der Frommen einnimmt, in welch innige, lebendige Beziehung des Heimatgefühls, der Freude, der Sehnsucht der einzelne Fromme zu ihm tritt und darin verbleibt, vergleiche Psa. 42 Psa. 43, den Preis der „Vorhöfe des Herrn“ Psa. 84, 3 Psa. 84, 11; Psa. 92, 14; Psa. 96, 8; Psa. 100, 4; das Beten „zum heiligen Chor“ Psa. 28, 2; die Erhörung von „seinem heiligen Sitze“ und so weiter.
Nachdem aber alle die Hoffnungen Israels auf den äußeren Glanz des Tempels als des religiösen Mittelpunkts aller Heiden sich nicht erfüllt hatten, nachdem auch der zweite Tempel gefallen war, geht die Bedeutung des Tempels
B. im Neuen Testament sinnbildlich ins Geistige über. Jesus nennt seinen Leib den Tempel Gottes, Matth. 26, 61; Mark. 14, 58; Joh. 2, 19 Joh. 2, 21, sofern Gott in ihm wohnt und so der wirkliche Tempel ein Typus auf ihn ist.
Während der äußere Tempel vor seinen Augen, wenn zerstört, nicht mehr aufgerichtet wird, wird sich der Tempel seines Leibes in der Gotteskraft aus dem Grab erheben.
An dieses Sinnbild schließt Paulus unmittelbar an, wenn er den Leib des in Christus Geheiligten einen „Tempel des Heiligen Geistes“ (1Kor. 6, 19), die Christen selbst „den Tempel des lebendigen Gottes“ nennt (2Kor. 6, 16), und endlich diese typische Bezeichnung auf die ganze Gemeinde in ihrem Aufbau und inneren Zusammenhalt in Christus (Eph. 2, 21 „ein heiliger Tempel in dem Herrn“; 2Thes. 2, 4 „Tempel Gottes“) überträgt (vergleiche auch Offb. 3, 12).
— Die Offenbarung Johannis führt diese Vergeistigung des Tempels bis in die jenseitige Vollendung hinüber, wo im neuen Jerusalem „kein Tempel mehr ist“, „denn der Herr ist ihr Tempel und das Lamm“. Offb. 21, 22. Doch wird in anderen Stellen auch der Himmel, das obere Heiligtum mit dem Tempel verglichen, Offb. 7, 15; Offb. 11, 19; Offb. 16, 1 und andere.
Abb. 345. Grundriss des salomonischen Tempels.
Abb. 346. Der innere Teil des Tempels von Jerusalem (ohne Vorhof) nach Hesekiel. Nach einem Modell von Th. Thipiez.
Abb. 347. Der Tempel Salomos nach dem Modell von Baurat Konrad Schick.
II. Der Tempel Serubabels. Über 400 Jahre hatte der erste Tempel bestanden, 2Kön. 25, 9. 2Kön. 25, 13–17; Jer. 27, 19–22. Als nun unter Cyrus die erste Abteilung Juden heimkehren durfte, 536 v. Chr., nahm ihr Führer Serubabel (siehe diesen Artikel) mit der Rückerstattung der Tempelgefäße die königliche Vollmacht zum Wiederaufbau des Tempels mit (Jes. 44, 28; 2Chr. 36, 23; Esr. 1, 2ff. Esr. 1, 7ff.), ja sogar zur Erhebung von königlichen Geldern dazu und zur Requisition des Zedernholzes von den Phönikiern, Esr. 6, 4. Esr. 6, 8.
Mit feurigem Eifer wurde das Werk begonnen: erst der Brandopferaltar an der alten Stelle wiederaufgerichtet und in Gebrauch genommen, Esr. 3, 1ff.
Dann eine Kollekte unter den Volksgenossen aufgebracht, Esr. 2, 68ff., und im zweiten Monat des zweiten Jahres nach der Heimkehr der Grundstein gelegt, Esr. 3, 8ff., unter großer Bewegung der Gemüter, V. Esr. 3, 12.
Aber das Unternehmen geriet bald wieder ins Stocken, bis es auf Betrieb der Propheten Haggai und Sacharja wieder aufgenommen (Esr. 5, 1ff.; Hag. 1, 14) und 516 vor Christus, unter Darius, das Tempelhaus eingeweiht wurde, Esr. 6.
Es schloss sich dem Plan und den Formen des salomonischen an, nur ohne Prachtausstattung des Innern bei der Schwere der Zeiten.
Überdies war das Allerheiligste leer, die Bundeslade längst spurlos verschwunden; an ihrer Stelle befand sich ein Stein, auf welchen der Hohepriester am Versöhnungstage die Rauchpfanne stellte.
Im Heiligen befand sich nur mehr ein Leuchter und ein Schaubrottisch (statt je zehn auf beiden Seiten); doch scheint Goldüberzug und Goldschmuck nicht ganz gefehlt zu haben (Beraubung durch Antiochus, 1Makk. 1, 23ff.).
— Auf die Plünderung und Entweihung durch Antiochus folgte die Reinigung und Herstellung des Heiligtums durch Judas Makkabäus, 1Makk. 4, 43ff.; 2Makk. 10, 3ff.
Aber nun wurde Jerusalem von Pompejus 63 v. Chr. samt dem wohlbefestigten Tempel erstürmt, der letztere zwar noch geschont, von Crassus aber bald darauf ausgeplündert, als Herodes der Große die Regierung antrat, zu einem Teil verbrannt, um dann eben von diesem Fürsten, der die Gunst der Juden damit gewinnen wollte, in jener alles Bisherige, auch den salomonischen Bau, weit hinter sich lassenden Pracht und Herrlichkeit, scheinbar nur umgebaut, in Wahrheit aber ganz neugebaut zu werden, welche nach Matth. 24, 1 auch der Jünger und des Herrn Aufmerksamkeit erregte.
Abb. 348. Phönizisches Tempelchen.
Abb. 349. Tempelanlage des Herodes.
III. Den herodianischen Tempel kennen wir aus Josephus („jüd. Arch.“ XV und „jüd. Krieg“ V) und dem Talmud.
Die Lage des neuen Tempels (Tempel) musste dieselbe bleiben, auf dem alten heiligen Platz, der heutigen Terrasse des Haram esch-Scharif. Durch neue Böschungen und Stützmauern wurde das damalige Plateau von Herodes noch erweitert, dessen ganze Anlage die erste weit an Größe übertraf (nach Josephus mit Einschluss der angebauten Burg Antonia sechs Stadien – 1100 m im Umkreis).
Herodes begann mit dem Tempelbau im Jahr 20 v. Chr. Er wurde in 1½ Jahren vollendet; die Vorhöfe mit ihren Hallen und Umfassungsmauern nahmen weitere 11–12 Jahre in Anspruch. Mit der Verschönerung des Ganzen, der Aufführung von Nebengebäuden wurde mit Unterbrechungen fortgefahren (Joh. 2, 20 zählt 46 Jahre des Baues bis dahin) bis zum Ausbruch des jüdischen Krieges, an dessen Ende die Römer die ganze herrliche Schöpfung vollständig niederbrannten (70 n. Chr.).
— Der Stil des Baues war im ganzen der griechisch-römische, während wir allerdings betreffend des Innern des Tempels und der Geräte im Ungewissen bleiben, wie weit sich da vielleicht Herodes politischerweise den altorientalischen Kunsttraditionen, das heißt also den Formen der salomonischen Zeit angeschlossen haben mag. Wir haben uns eine stolze, prachtvolle Anlage zu denken. Wenn wir von Außen an den herodianischen Tempel herantreten, so sehen wir nur die hohe, feste Umfassungsmauer mit zinnengekrönten, festungsmäßigen Eck- und Vortaltürmen im Viereck. Treten wir durch eines der acht Tore hinein, zum Beispiel das Ost- oder Morgentor, die sogenannte „goldene Pforte“, so haben wir vor uns das gegen Osten gewendete Tempelhaus (vergleiche den Grundriss Abb. 349); oben in der Nord-West-Ecke schaut die angebaute Zitadelle, die Burg Antonia, herein, und zur Seite breitet sich von hohen und herrlichen korinthischen und römisch-dorischen offenen Säulenhallen eingefasst, a, der Vorhof der Heiden, A, aus, dem Zutritt jedermanns offen, das Forum, der schönste öffentliche Platz von Jerusalem. Welche Bedeutung hatte dieser Platz für den frommen Israeliten, für einen Simeon, der hier seinen Heiland sah! Und welche Erinnerungen knüpfen sich auch für uns Christen an denselben! Hier durch dieses Morgentor zog der Herr als Festpilger am Palmsonntag ein; hier in den Hallen wandelte, redete und lehrte er und die Apostel (Luk. 19, 47; Luk. 24, 53); dort aus dem Weiber-Vorhof, D, trieb er mit heiligem Eifer die Wechsler usw. aus, welche nur im Heidenvorhof, in den westlichen und nördlichen „Volkshallen“ ihren Platz hatten; dort an der „schönen Pforte“, aus dem äußeren in den inneren Vorhof, heilten die Apostel den Lahmen, und die hohen Zinnentürme der Mauer, die in die schauerliche Tiefe der West- und Südabhänge des Berges und in den Hof hoch herabschauten, erinnern uns an Matth. 4, 5.
— Die 8 Tore, welche von Außen in den Tempelplatz führten, verteilten sich zu vier auf die Westseite, zwei auf die Südseite, je eins auf Osten und Norden. Sie waren, wie die spärlichen Reste ältester Zeit am goldenen und an den zwei südlichen „Hulda- oder Chulda-Toren“ der Mischna (das eine doppelt, das andere dreifach gekoppelt) ahnen lassen, prachtvoll gebaut, zum Teil mit festen Torhallen. Von der Westseite der Hauptstadtseite führte der Weg über die Brücke. Das Nordtor heißt die Mischna Tadi-Tor. Die Südtore an dem steilsten, senkrechten Abhang führten auf unterfahrenen Treppen von unten herauf ans Licht des herrlichen Platzes, dessen großartigste Seitenhalle eben die südliche, die prächtige dreischiffige königliche Halle, b, war. Die übrigen Hallen waren zweischiffig; die östliche, wo sich auch die Synagogen befanden, hieß die salomonische, weil ihre Grundlage ein älteres Bauwerk bildete, das man dem Salomo zuschrieb. In der Nordwestecke sind die Treppen, die zur Burg Antonio führten, von wo der Tempel bewacht und an Festen besetzt wurde, von wo Paulus seine Ansprache an das Volk hielt, Apg. 21, 35. Apg. 21, 40.
Weiter gelangen wir, nach Innen fortschreitend, an eine steinerne Brustwehr, welche den erhöhten „Vorhof“ von dem großen allgemeinen Platze abgrenzte. Er lag nicht in der Mitte desselben, sondern stark gegen Westen und Norden vorgerückt, so dass der äußere Platz gegen Osten und Süden am weitesten war, gegen Norden enger und im Westen nur einen schmalen, freien Umgang hinter dem innerhalb liegenden „Vorhof“ bildete. Dieser war nun der eigentliche heilige Raum und zwar in drei Terrassen über den äußeren erhöht. Die erste Terrasse (Abb. 350 aa) erreichen wir, durch die Brustwehr hindurchgehend, auf 14 Stufen durch 9 Eingänge, der Haupteingang von Osten. Im Westen war keiner, und auch also kein Terrassenumgang. An diesen Eingängen waren jene griechisch und römisch geschriebenen Warnungstafeln, deren eine aufgefunden worden ist (Abb. 351), angebracht, welche, allen Nichtjuden den Eingang bei Todesstrafe untersagten (vergleiche Apg. 21, 28). Von dieser ersten Terrasse oder dem Zwinger führen wieder 9, den ersten gegenüberliegende Eingänge, ee, durch eine zweite Scheidungswand auf die zweite Terrasse, welche den äußeren Vorhof bildet. Nur der kleinere östliche, vordere Teil desselben aber ist offen, der Vorhof der Weiber, D. Die größere westliche Hälfte ist durch einen Querbau mit anstoßender Quermauer abgetrennt, eine dritte Terrasse, der innere, der Männervorhof, f. Dieser enthielt Schatzkammern, Säle, gg, wohl auch den Sitzungssaal des hohen Rats usw.; die prachtvolle Pforte, die nach dem Männervorhof hinaufführte, ist die „schöne Tür“, Apg. 3, 2. Vom Männervorhof, f, gelangt man in den Priestervorhof, C, mit dem Brandopferaltar, h, dem Schlachtplatz, dem ehernen Meer, i, dann kommt endlich die Vorhalle zum Tempelgebäude selbst, k.
— Wie nun das Tempelhaus von Außen baulich gestaltet war, ist schwer zu sagen. Ob Herodes auch hier den griechisch-römischen Stil herrschen ließ oder nun bei diesem innersten Heiligtum der Juden sich den altorientalischen Formen mehr anschloss, ist fraglich. Dass er es eher im Innern des Tempels tat, haben wir schon gesagt. Die Hauptteile des alten salomonischen Tempels (dreistöckiger Seitenbau auf drei Seiten, erhöhter Mittelbau, Vorhalle) blieben jedenfalls gewahrt. Das Innere war natürlich in Mosaikböden, Deckenvergoldung und Wandverkleidung durchweg von größter Pracht.
— Die äußere Toröffnung der Vorhalle hat keine Tür. Man sieht durch sie hindurch auf die innere Pforte mit dem um sie her angebrachten großen goldenen Weinstock (Josephus, Tacitus), mit ihrer vergoldeten Tür und dem prachtvollen, bunt gewirkten babylonischen Vorhang davor. Ein gleicher doppelter Vorhang trennte das Heilige, l, von dem Allerheiligsten, m, und dieser ist immer im Neuen Testament gemeint (Matth. 27, 51; Hebr. 6, 19; Hebr. 9, 3 usw.). Der innere Tempelraum maß wieder seine 60–70 Ellen in der Länge, 20 in der Breite, 40 in der Höhe; er war dunkel wie vor alters, das Allerheiligste leer, im Heiligen dieselben Geräte, wie im nachexilischen Tempel.
– Die Seitenbauten, n, um das Tempelinnere herum, und das Obergemach kennen wir schon vom Tempel Salomos; sie dienten denselben Zwecken und waren von Außen durch Wendelgänge zugänglich.
– Die mehrfache Erwähnung von Tempelhauptleuten, Apg. 4, 1; Apg. 5, 24; Luk. 22, 4. Luk. 22, 52, erinnert uns an die Tempelpolizei, die in den Händen der Priester und Leviten war.
Sie wachte bei Tag und machte nächtliche Runden abteilungsweise, alles wohl begreiflich bei einem so ungeheuer weitläufigen, volksbelebten Gebäude- und Hallenkomplex, wie es der dritte, der prachtvollste, großartigste und imposanteste der Tempel Israels, der Tempel Herodis, war.
– Zum zweiten Tempel verweisen wir noch auf einen angenehm lesbaren Artikel von Dalman im Palästinajahrbuch V. 1909; zum herodianischen im selben Jahrbuch VII. 1911 auf den Artikel „Jerusalem zur Zeit Christi“ von Mickley, S. 67ff.
R. Pfleiderer.
Abb. 350. Grundriss des herodianischen Tempels.
Abb. 351. Warnungstafel aus dem Tempel des Herodes. (Jetzt im Museum zu Istanbul.)
|
About Calwer Bibellexikon: Biblisches Handwörterbuch illustriertDas Calwer Bibellexikon ist einer der bekanntesten Namen unter den deutschsprachigen Bibellexika. Laut Vorwort ist es als ein Handbuch für den nachdenkenden Bibelleser, Geistlichen oder Religionslehrer gedacht. Das Nachschlagewerk soll es dem Leser ermöglichen, ein „eben gelesenes Bibelwort als ein Glied in das ganze Gebäude seiner biblischen Anschauungs- und Gedankenwelt“ einzufügen. Der Herausgeber Paul Zeller merkt zudem an, das Werk sei „in dem einen Geist demütiger Ehrfurcht vor dem Worte Gottes und herzlicher Liebe zu der heiligen Schrift“ entstanden (Vorwort 2. Aufl.). Das Calwer Bibellexikon erschien zum ersten Mal im Jahr 1884, die zweite Auflage 1893, beide erfreuten sich großer Nachfrage. Die hier verfügbare dritte Auflage (1912) ist das Ergebnis einer umfassenderen Umarbeitung und teils auch Verkürzung. Der Herausgeber und die Mitwirkenden stammten zumeist aus der Württembergischen Landeskirche und der Schweiz. Bekannt war es auch unter dem alternativen Titel „Biblisches Handwörterbuch, illustriert“. |
| Support Info | depdbiblen |
Loading…